Používame cookies

Súbory cookie a ďalšie technológie sledovania používame na zlepšenie vášho zážitku z prehliadania našich webových stránok, na to, aby sme vám zobrazovali prispôsobený obsah a cielené reklamy, na analýzu návštevnosti našich webových stránok a na pochopenie toho, odkiaľ naši návštevníci prichádzajú. Viac info

IBA U NÁS! ponúkame kvalitný dom pripravený na váš interiér

  • Exkluzívna ponuka

Popis nehnuteľnosti

Zdieľať na Facebooku

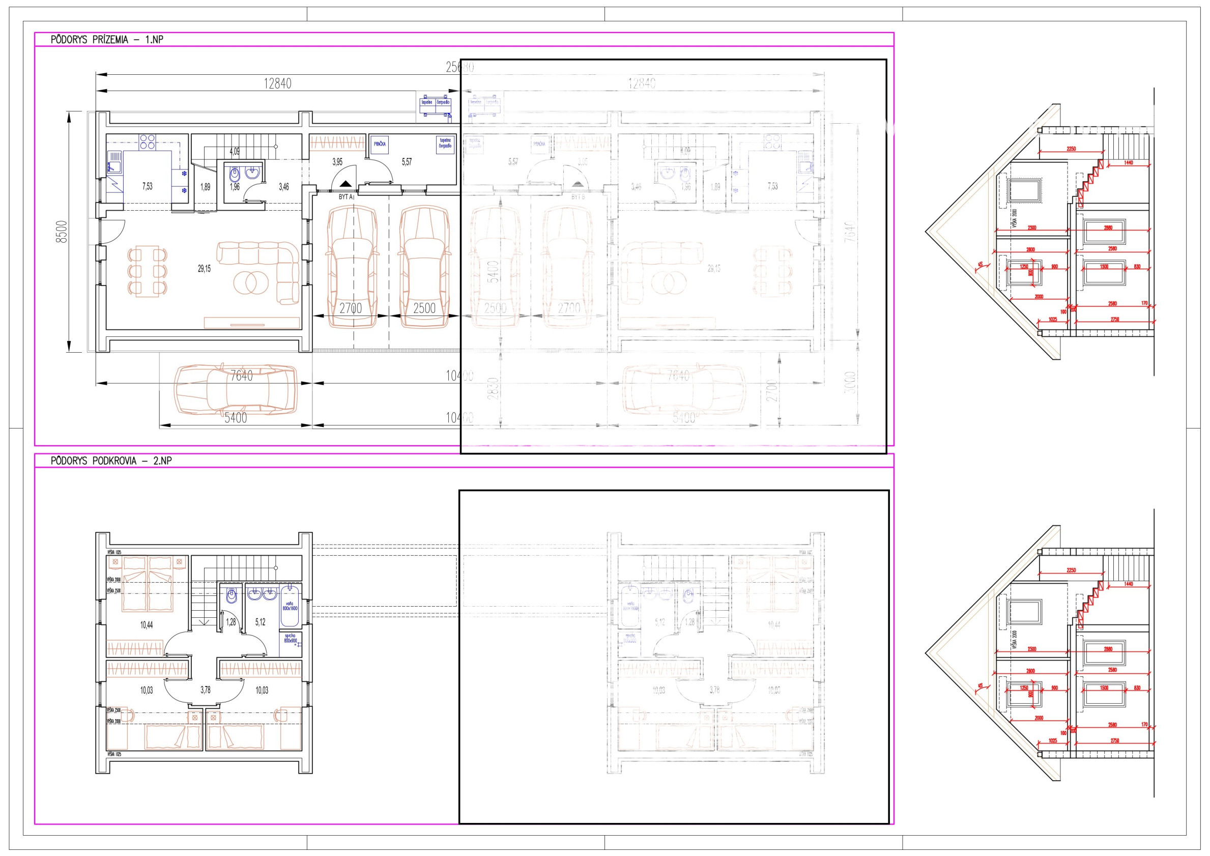
Ponúkame na predaj práve dokončený a skolaudovaný rodinný dom v stave holodom výbornej, zabývanej, centrálnej lokalite v Bernolákove. Dom je postavený z kvalitnej tehly Ytong, zateplený 12 cm polystyrénom, čo zabezpečuje vysokú energetickú účinnosť a príjemnú vnútornú klímu počas celého roka.

  • Úžitková plocha: 98,28 m²
  • Pozemok: 212 m²
  • Parkovanie: 3 parkovacie miesta so zatrávňovacími tvárnicami

Technické vybavenie

  • Tepelné čerpadlo na ohrev teplej vody
  • Vodné stropné chladenie – komfort v lete
  • Okná s trojsklom značky Kommerling
  • Individuálna regulácia kúrenia a chladenia v každej miestnosti
  • Technická miestnosť s výlevkou, prípojkami na práčku a sušičku a umiestnenými rozvádzačmi

Interiér – holodom

  • Sadrové omietky, kompletné rozvody internetu a TV
  • Príprava na kúpeľňu (Geberit toaleta, rozvody pre  batérie)
  • Pripravené zásuvky, vypínače a parapety vo všetkých miestnostiach
  • Možnosť dokončenia podľa vlastných predstáv – obklady, dlažby, interiérové dvere a zárubne

Exteriér

  • Strecha s kvalitným tmavohnedým oplechovaním Bramac
  • Kamenné obloženie vstupu 
  • Oplotenie z gabiónov s kameňmi – moderný vzhľad a bezpečnosť

Tento dom je skvelou voľbou pre tých, ktorí chcú okamžite bývať v novostavbe a zároveň si prispôsobiť interiér podľa vlastného vkusu. Moderné technológie a kvalitné materiály zaručujú nízke prevádzkové náklady a vysoký komfort bývania.

  • Bernolákovo – príjemné bývanie v blízkosti Bratislavy

Obec Bernolákovo ponúka veľmi dobré dopravné napojenie – k dispozícii je vlakové aj autobusové spojenie, ktoré zabezpečuje pohodlnú dochádzku do Bratislavy a okolia. Motoristov poteší blízkosť diaľnice s rýchlym napojením na hlavné ťahy.

V obci sa nachádza kompletná občianska vybavenosť – materská a základná škola, obchody, služby, zdravotné stredisko či reštaurácie, čo zabezpečuje komfortné každodenné fungovanie.

Veľkou výhodou je aj blízkosť prírody, množstvo zelene a možnosti aktívneho oddychu. Okolie ponúka cyklistické trasy, prechádzky či športové vyžitie pre celú rodinu.

Bernolákovo predstavuje ideálnu kombináciu pokojného bývania a dobrej dostupnosti do mesta.

Cena: 319900 € vrátane kompletného realitného servisu spoločnosti Vianema.
Dohodnite si obhliadku tohto domu, radi vám ho ukážeme.

Kontakt: Bc. Tatiana Wilhelmová +421905520650 wilhelmova@vianema.eu

VIANEMA. Komplexné služby pre váš Projekt Bývanie a Investície pod jednou strechou.
Právny servis a poradenstvo, finančné služby a investičné poradenstvo, poistenie, služby znalca a znalecké posudky, odkup nehnuteľností, development, rekonštrukcie vrátane architektonickej a dizajnérskej expertízy, sťahovacie služby, manažment prenajatých nehnuteľností, kúpa - predaj, import áut.

Vlastnosti

Status:
aktívne
Vlastníctvo:
osobné
Plocha pozemku:
212 m2
Úžitková plocha:
98 m2
Zastavaná plocha:
110 m2
Stav:
novostavba
Počet izieb:
4
Terasa:
áno
Verejné vonkajšie parkovanie:
áno
Špajza:
áno
Dielňa:
áno
Rok kolaudácie:
2025
Celková plocha:
98 m2
Počet vonkajších parkovacích miest:
3
Inžinierske siete:
áno
Voda:
áno
Elektrika:
áno
Plyn:
áno
Kanalizácia:
áno

Hypotekárna kalkulačka

319 990 €
Ulica: Bernolákovo
Obec: Bernolákovo
Okres: Senec
Kraj: Bratislavský kraj
Druh: Domy
Typ: Predaj
Typ domu: Rodinný dom

Bc. Tatiana Wilhelmová

Lokalita: Bratislava a okolie
  • Slovensky

Radi vám poradíme