Používame cookies

Súbory cookie a ďalšie technológie sledovania používame na zlepšenie vášho zážitku z prehliadania našich webových stránok, na to, aby sme vám zobrazovali prispôsobený obsah a cielené reklamy, na analýzu návštevnosti našich webových stránok a na pochopenie toho, odkiaľ naši návštevníci prichádzajú. Viac info

NA PRENÁJOM priestor v obci Bernolákovo

  • Exkluzívna ponuka

Popis nehnuteľnosti

Zdieľať na Facebooku

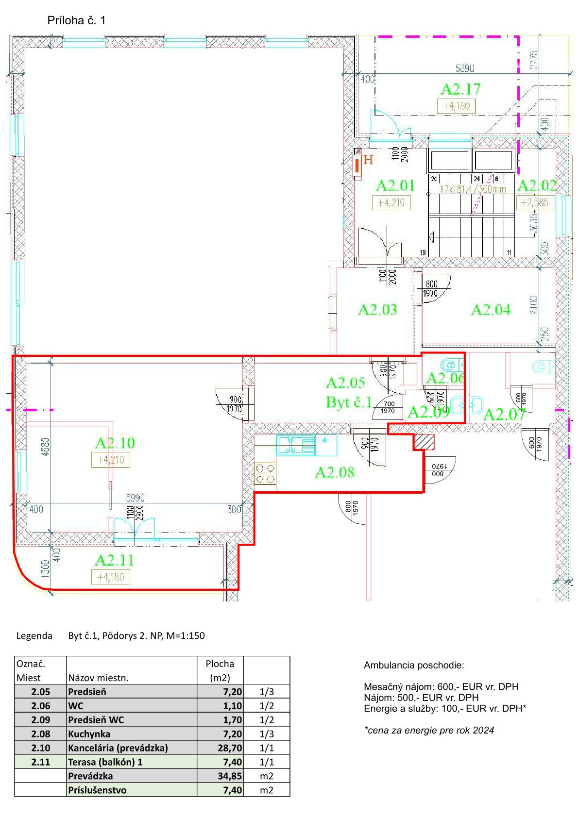
Ponúkame na prenájom priestor s výmerou 34,8m² na poschodí budovy priamo v centre Bernolákova,

Priestor o výmere 34,8m2 je rozdelený na dve miestnosti, ktoré je možné prepojiť podľa potrieb nájomcu (pri dlhodobom prenájme). 

  • pokojná a bezpečná lokalita s kompletnou občianskou vybavenosťou (lekáreň, drogéria, kaviareň, reštaurácie, obchody)
  • výborná dopravná dostupnosť – napojenie na D1, iba 6 km od Bratislavy a 7 km od Senca

Cena prenájmu: 500€ + energie (cca 100€)
Podmienky: pri podpise zmluvy sa platia dve mesačné nájomné a provízia pre RK vo výške mesačného nájomného. Minimálna doba prenájmu je 1 rok.

👉 Neváhajte a dohodnite si obhliadku ešte dnes!

📞 +421 905 520 650
✉️ wilhelmova@vianema.eu
 

Vlastnosti

Status:
aktívne
Vlastníctvo:
osobné
Úžitková plocha:
34,8 m2
Zastavaná plocha:
34,8 m2
Stav:
úplne prerobený
Energetický certifikát:
žiadne
Verejné vonkajšie parkovanie:
áno
Celková plocha:
34,8 m2
Vykurovanie - centrálne:
áno
Internet:
áno
14,40 €/m2/mesiac 100€ energie/mesiac
Ulica: Bernolákova
Obec: Bernolákovo
Okres: Senec
Kraj: Bratislavský kraj
Druh: Objekty
Typ: Prenájom
Typ objektu: Kancelárie

Bc. Tatiana Wilhelmová

Lokalita: Bratislava a okolie
  • Slovensky

Radi vám poradíme